Transformation d'une grande chambre en L en deux pièces distinctes : une chambre parentale apaisante et un bureau/chambre d'amis haut en couleur
Coucou la maisonnée ! Voici un projet réalisé en 2023, à Boulogne Billancourt, aux portes de Paris et tout proche de la Seine.
Mes clients, un couple avec deux enfants, venaient d’acheter cet ancien atelier de confection, réhabilité en appartement. Ils avaient craqué sur le côté atypique du lieu, mais aussi l’emplacement, et la présence d’un petit extérieur.
Cela dit, à y vivre, ils se sont rapidement rendus compte que l’agencement n’était pas pratique, et qu’ils avaient besoin de repenser complètement le niveau bas de l’appartement en duplex, afin de l’adapter au mode de vie de leur petite famille.
Ils m’ont donc appelé à ce moment-là, afin de les aider à réagencer complètement leur lieu de vie, mais aussi pour les conseiller sur la partie décoration, coloris, matériaux à choisir, etc…
Allez la maisonnée, c’est parti pour la visite !
Chambre en L divisée, avec ici une chambre parentale douce et chaleureuse. Papier peint panoramique beige, dressing portes cannages.
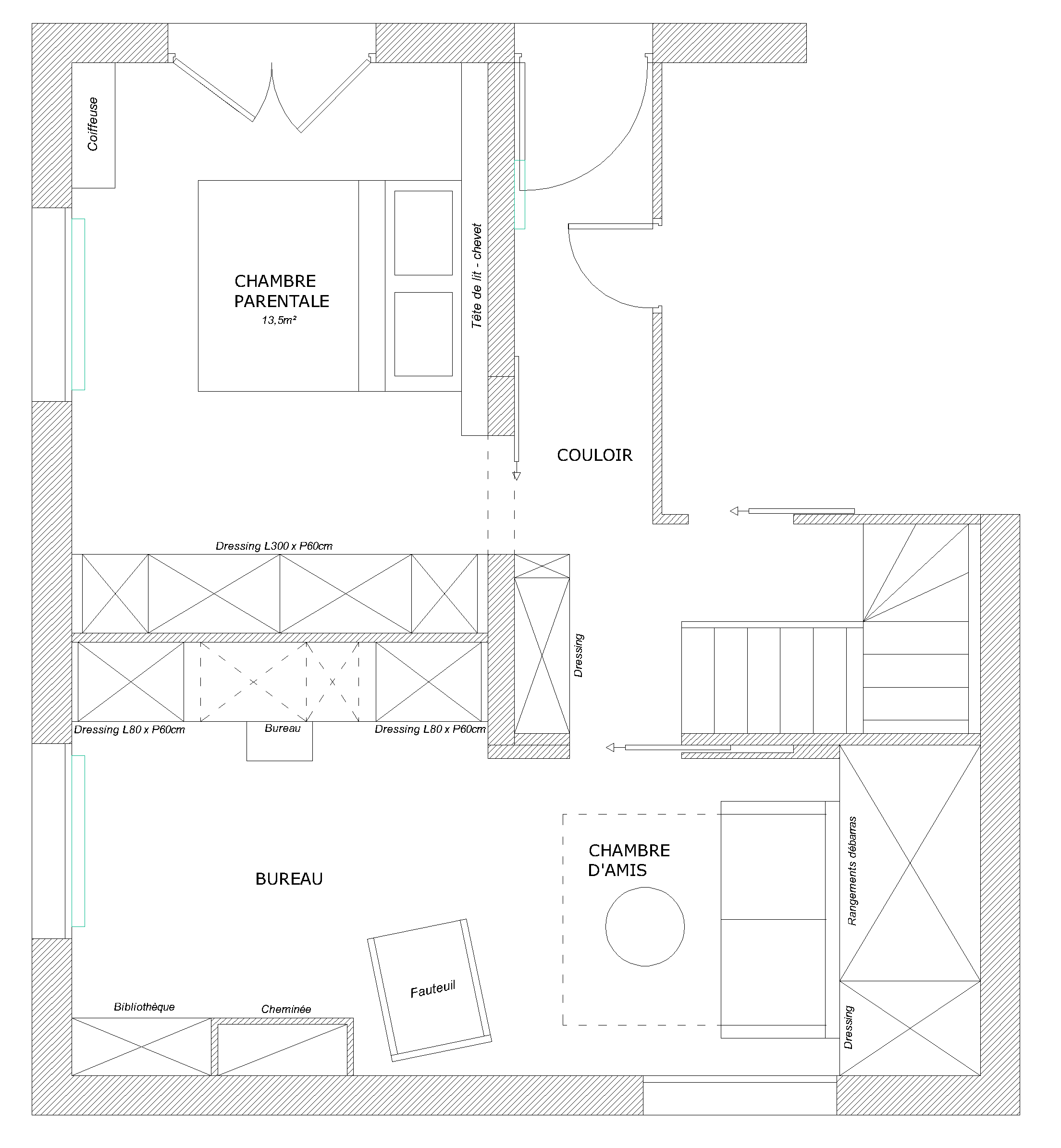
La grande chambre en L et la transformation
Le plan de la chambre Avant
Le plan de la chambre parentale et de la chambre d’amis/bureau Après
Cet appartement a plusieurs particularités : tout d’abord, tout une zone est aveugle, c’est à dire sans fenêtre. Auparavant était installées dans cette zone la cuisine et la chambre d’amis. Egalement, des fenêtres fixes translucides éclairent l’espace de vie, sans vue sur l’extérieur. Enfin, le salon / salle à manger était très vaste et lumineux, mais éloigné de la cuisine, ce qui n’était vraiment pas pratique au quotidien.
Je me suis donc vraiment attardée sur la façon d’adapter le lieu au mode de vie de la famille, afin que le quotidien soit plus doux et pratique pour chacun des habitants, mais aussi pour que la personnalité de mes clients ressortent dans la décoration.
Pour cela, nous avons gardé une grande partie du mobilier et des verrières existantes, mais installés différemment dans le projet final. Ce point a permis de faire des économies, de garder l’âme historique du lieu et de la famille, mais aussi de réduire les déchets et les achats, alors que les éléments sur place étaient déjà très bien !
La grande chambre parentale en L avant les travaux
La première étape du projet, comme à chaque fois, a été de faire le point sur les besoins de la famille, mais aussi leurs habitudes de vie, leurs envies, ainsi bien sûr, que son budget (l’argent, toujours l’argent ahah, le nerf de la guerre comme on dit !).
Le couple avait envie de voir avec moi si le déplacement de la cuisine dans l’espace de vie pourrait être une possibilité judicieuse. Ils ne savaient pas vraiment comment faire techniquement non plus, les pièces d’eau actuelles étant tout au fond de l’appartement, opposées à l’emplacement envisagé pour la future cuisine.
Ils avaient également à coeur de conserver un maximum d’éléments historiques du lieu, comme les verrières, installées précédemment dans l’atelier de couture, mais aussi les portes de dressing en métal de l’entrée.
La famille possédait également du mobilier auquel elle tenait, comme la banquette du salon, mais aussi des éléments décoratifs tels que les luminaires, des fauteuils, etc…
J’ai donc travaillé tout au long du projet en faisant en sorte de conserver au maximum tous ces éléments, cohérents avec le projet, ce qui permettait également de réduire les futurs achats de mobilier ou aménagement, et donc de réduire les frais et les déchets. Plus on réutilise ses anciens meubles, en les disposant autrement, ou en leur donnant une fonction différente, moins on aura besoin de racheter, et donc de dépenser.
L’aménagement et la décoration
La cuisine est donc à présent ouverte sur le salon et la salle à manger, mais séparée visuellement de cette dernière grâce à une cloison à mi-hauteur, permettant de fixer les casseroliers côté cuisine, d’avoir des prises électriques au niveau de la petite crédence, mais aussi d’avoir un dossier assez haut et pratique pour la banquette côté coin repas.
L’ancienne pièce cuisine a été transformée en petit salon, accolé au salon principal, qui sert pour regarder la télé, mais aussi de salle de jeux pour les enfants. Tout au fond, l’ancien cellier de la cuisine a été entièrement rénové et converti en coin bureau pour le télétravail, avec une grande colonne de rangements.
La pièce située au bout de l’appartement, servant auparavant pour un couchage d’appoint, mais aussi pour faire sécher le linge, et ranger les nombreuses BD de la famille, a conservé en réalité cette fonction, mais nous l’avons rendue beaucoup plus pratique, en installant tout d’abord un canapé convertible, mais aussi et surtout, en réaménageant la petite buanderie installée juste à côté, ce qui a permis de rendre ces deux pièces beaucoup plus commodes à l’usage.
Le salon avec à gauche, l’entrée, et à droite, l’accès au salon télé/salle de jeux
La cuisine et la salle à manger Après
Enfin, l’entrée a également connu une belle transformation, en repensant la circulation vers les différents espaces et en ajoutant du rangement, mais aussi en travaillant une décoration plus marquée, donnant directement le ton de l’appartement.
Côté décoration, comme je vous l’expliquais un peu plus haut, pour ce projet, mes clients savaient déjà pas mal ce dont ils avaient envie. Il leur manquait le petit coup de pouce afin d’impulser le changement, et créer une harmonie entre tous les espaces, mais aussi faire des choix plus éclairés au regard du futur espace dans sa globalité.
Nous avons donc conservé la quasi totalité des meubles existants, seul le canapé du salon a été remplacé par un canapé plus confortable et adapté à un salon de réception, mais qui puisse aussi servir pour lire, se retrouver en famille, etc…
La vue d’ensemble de la salle à manger et de la cuisine Après
La chambre parentale
Commençons par l’entrée, où il y a eu beaucoup de changements !
Tout d’abord, l’entrée donnait auparavant sur la cuisine, qui était son seul accès. Ayant transformé dans le projet l’ancienne cuisine en petit salon télé/salle de jeux, nous avons créé un accès côté salon, et refermé le passage entre l’ancienne cuisine et l’entrée.
Comme dit précédemment, nous avons conservé toutes les portes en métal et les verrières existantes, mais nous les avons placées autrement.
Ici, les anciennes portes en métal donnant sur la cuisine ont été remplacées par la verrière fixe qui était installée entre l’ancienne cuisine et le salon (j’espère que vous arrivez à suivre, ce n’est pas simple à expliquer ahah!).
Sous cette nouvelle verrière fixe, entre le salon télé et l’entrée, j’ai imaginé une banquette sur mesure, qui accueille des rangements supplémentaires (venant en complément des dressings existants conservés, derrières les portes en métal noir).
On ne se rend peut-être pas trop compte sur les photos, mais l’entrée est assez sombre, car il n’y a pas de fenêtre dans cet espace, à part l’ouverture sur l’espace de vie.
L’entrée Avant
L’entrée Après
Dans cette pièce, nous avons également effectué un gros travail d’ambiance et de décoration. Le couple aimait beaucoup la peinture vert de gris présente dans le salon. Dans le projet, nous avions convenu qu’il était préférable de garder les murs blancs dans l’espace de vie, afin d’apporter un maximum de luminosité, et de s’amuser un peu plus sur la déco murale, les luminaires et le mobilier.
L’idée a donc été de reprendre ce coloris de peinture qu’ils adoraient, mais de le placer dans l’entrée cette fois-ci, en association avec un très joli papier peint rayé, dans les mêmes teintes, posé au-dessus du meuble bas en bois et dans la montée d’escalier.
L’entrée Avant
L’entrée Après
Enfin, on ne s’en rend pas bien compte sur les photos, mais une petite marche était présente avant les travaux, au niveau de la porte d’entrée (vous pouvez la voir sur la photos au-dessus à gauche). Cette marche était très problématique, car les habitants et invités avaient tendance à trébucher très facilement. Le couple n’aimait pas du tout le carrelage noir au sol, nous avons donc profité de changer le sol pour supprimer cette marche embêtante !
Pour le nouveau carrelage de l’entrée, nous avons longuement cherché avec mes clients, et nous avons été conquis par ce carrelage imitation granito / terrazzo, dans une nuance verte proche de la couleur des murs.
Pour la partie déco, les poignées de portes ont aussi été changées, remplacées par les poignées en métal noir rappelant les verrières et les portes de dressing de l’atelier de couture.
La chambre d’amis / bureau
Nous voici à présent dans l’espace de vie, et plus précisément le salon. Ici, il n’y avait pas de trop gros travaux à prévoir, l’emplacement restant le même, celui-ci convenant parfaitement pour la petite famille.
Mais il fallait créer par ici l’accès au petit salon télé/salle de jeux/bureau, puisqu’il n’y avait pas de passage entre ces deux espaces (vous pouvez vous référer aux plans existants et projets que je vous ai partagé au début de cet article).
De plus, une différence de niveau est présente entre ces zones, nous devions donc créer des marches pour accéder au petit salon adjacent. Pour cela, nous avons fait le choix de créer des marches dans le même esprit que celles entre l’espace de vie et l’entrée, comme si elles avaient toujours été là.
Nous avons conservé au maximum le mobilier et la décoration existante du salon, seul le canapé a été remplacé par une nouvelle assise plus confortable, dans un style neutre et chaleureux se mariant parfaitement avec le reste de la décoration.
Le salon est habillé de murs blancs, contrastant avec la peinture vert de gris de l’entrée, et les murs coloris paille du salon télé / salle de jeux.
A l’arrière du canapé, j’ai imaginé un coffrage qui vient cacher les tuyaux de la nouvelle cuisine, mais qui permet aussi de poser de la petite déco, et le tableau Van Gogh que le couple avait précédemment installé dans l’entrée.
Afin d’éclairer cet espace, j’ai proposé d’installer de jolies appliques en laiton, qui viennent décorer les murs tout en ajoutant des éclairages le soir venu.
Les murs ont tous été entièrement repeints en blanc, afin de mettre l’accent sur les éléments de décoration colorés, tels que le fauteuil jaune conservé, les suspensions au-dessus de l’ilôt de cuisine, ou la toile au-dessus du canapé.
Egalement, nous avons enlevé la télévision qui était par le passé installée face au canapé, afin de la déplacer dans le petit salon adjacent, permettant d’avoir un espace plus calme, pour lire ou discuter, et un espace salon télé.
Le parquet existant, très joli, a été conservé bien sûr ! Un parquet similaire a été posé dans le nouveau salon télé / salle de jeux, afin de créer une unité entre les différents espaces. Ce même sol a également été posé dans la chambre d’amis au fond de l’appartement.
Le salon Avant
Le salon Après
Comme vous pouvez le voir sur les photos Avant / Après, mon objectif pour ce projet était aussi que le salon soit plus adapté à toute la famille, et non avec un style trop enfantin. Je voulais aussi que celui-ci prenne plus sa place, que l’espace salon soit plus étendu, surtout que nous avions de la place !
Pour ce faire, la première idée était de déplacer la banquette existante, jolie mais plutôt pratique pour s’allonger ou regarder un film que pour s’asseoir. Et puis on le voit aussi sur les photos avant les travaux, la famille manquait de place pour poser des objets, des livres, et les jeux des enfants. L’idée de créer un salon télé qui servirait aussi de salle de jeux pour les filles étaient vraiment le plus logique pour le mode de vie de cette famille.
L’objectif de ce projet de rénovation était aussi de venir sublimer le lieu. Cet ancien atelier de couture avait besoin d’un coup de neuf pour retrouver de sa superbe !
Sur les photos à droite, vous pouvez voir le passage entre l’espace de vie et l’entrée, large et arrondi, parfaitement en accord avec ce qui se fait aujourd’hui, et pourtant, cet élément était déjà présent avant notre intervention.
Vous pouvez aussi apercevoir le très beau meuble en chêne de l’entrée, déjà sur place également avant la rénovation, et qui a été sublimé grâce à l’installation du papier peint juste au-dessus.
Pour la décoration, le couple souhaite peaufiner celle-ci, en changeant dans les mois à venir le tapis du salon, ainsi que les tables basses. Mais comme souvent, un projet de rénovation et de décoration prend du temps, et on a souvent d’autres choses qui viennent en priorité.
Mais prendre son temps est selon moi primordial, les choix et les achats sont ainsi mieux réfléchis, parfaitement pensés, cela aide à moins se lasser de son environnement, et à garder ainsi plus longtemps les meubles et les éléments décoratifs qui nous entourent !
C’est aussi une des clés afin d’avoir un intérieur plus écologique et plus durable. J’écrirai un article sur ce sujet très bientôt, pour vous donner des astuces et vous aider à avoir un intérieur en accord avec ces principes.
Je vous propose un petit jeu des différences, ou plutôt des similitudes ! Si vous regardez bien toutes les photos Avant / Après de ce projet, vous pourrez voir que nous avons conservé la quasi totalité des meubles et de la décoration qui étaient déjà là avant, mais ils ont simplement été déplacés ou repensés !
Et moi, j’ai pris un réel plaisir à m’amuser à replacer intelligemment tous ces éléments, qui font partie de la vie de la famille, et auxquels ils tenaient pour la plupart.
Le projet
Nous voilà dans la zone où il y a eu le plus de changement !
Lors de ma rencontre avec mes clients, ils trouvaient leur espace de vie presque trop grand, en tout cas, pas assez bien exploité. La table de salle à manger (la même), était installée dans l’autre sens, et à l’emplacement de la cuisine se trouvait une zone de jeux pour les enfants, sans meubles, ce qui n’était pas du tout pratique à l’usage. Le projet que j’ai réalise pour eux leur a permis de se projeter, grâce aux 3D notamment, et de décider de déplacer la cuisine dans le salon.
La cuisine s’est logée dans une zone auparavant inexploitée, la pièce est aujourd’hui beaucoup plus facile à vivre pour toute la famille.
Ce que j’adore avec ce type de projet, c’est que j’ai pu travailler main dans la main avec mes clients. Friands de décoration, et avec un grand sens esthétique, ils avaient besoin de se projeter dans leurs premières idées, de visualisations plus techniques, et de quelqu’un pour les accompagner et les aider à faire les bons choix. Mais une fois le premier rendu effectué, cela a ouvert la créativité du couple, et ils ont pu me demander à ce moment là d’intégrer des éléments décoratifs qu’ils avaient repérés, et qui matchaient hyper bien avec le projet !
Nous avons choisi ensemble tous les matériaux pour la cuisine, les coloris de peinture, les sols, etc, et pour le tissu de la banquette par exemple, je l’ai découvert lors du shooting photo, nous ne l’avions pas décidé ensemble, et cela fonctionne complètement ! Je suis heureuse quand mes clients peuvent s’exprimer, et qu’ils mettent ainsi leur patte au projet, si c’est quelque chose qui leur plaît, même si je suis toujours vigilante à n’être qu’un intermédiaire entre mes clients et leur intérieur. Je suis là pour guider et accompagner, déceler, deviner et soumettre ce que j’ai perçu d’eux, et ce qui pourrait leur plaire, mais ce sont eux qui vont vivre dans le lieu, le plus important pour moi est donc que l’agencement et la décoration leur convienne parfaitement !
La cuisine et la salle à manger Avant
La cuisine et la salle à manger Après
Mes clients souhaitaient pouvoir continuer de recevoir facilement famille et amis, ils voulaient pouvoir faire de grands repas et des apéros dînatoires, mais aussi, cuisiner aisément au quotidien, et enfin, utiliser la table de repas pour télétravailler, faire les devoirs avec leurs filles, faire des jeux de société…
Nous avons donc créé un grand linéaire avec tous les éléments techniques le long du mur aveugle, celui-ci accueillant la colonne frigo, la colonne four, mais aussi l’évier et la plaque de cuisson. En face, avec un passage assez large pour circuler bien sûr, j’ai imaginé un ilôt qui sert de rangements mais aussi de plan de travail supplémentaire, et de séparation entre la cuisine et la salle à manger. Une cloison à mi-hauteur a été installée entre l’ilôt de cuisine et la banquette à l’arrière, permettant de fixer les meubles de part et d’autres, mais aussi d’avoir des prises électriques en crédence, ainsi qu’un dossier d’assise plus confortable.
La cuisine et la salle à manger Avant
Mes clients ont longuement hésité sur les finitions de façades pour la cuisine. Après de nombreux essais, ils ont finalement opté pour une cuisine avec des façades blanches, et des poignées dorées. Cette option permettait aussi de réduire grandement le budget, les façades blanches lisses étant moins chères que des façades plus travaillées ou colorées.
La cuisine et la salle à manger Après
L’accent et un peu plus d’argent ont ainsi pu être mis au niveau de la crédence en zelliges véritables, et du plan de travail en marbre. Les touches de doré au niveau des poignées et de la robinetterie viennent égayer l’ensemble, et apporter de l’élégance à la cuisine. Les suspensions corail au dessus de l’ilôt amènent quant à elle des pointes de couleur, et permettent d’éclairer le plan de travail de ce côté là.
En ce qui concerne la salle à manger, mes clients souhaitaient conserver leur table de repas. Ils voulaient aussi pouvoir continuer de recevoir, et y télétravailler. L’option finalement choisie a été celle comportant une banquette d’un côté, à l’arrière de l’ilôt, avec des rangements en dessous, et tout de même assez de place pour circuler et tourner autour de la table.

